JK-1C型升降機快速曳引機
JK-1系列快速曳引機是建筑工地用物料提升機、井架式升降機、龍門架、簡易貨梯等升降機的新型驅動設備。利用摩擦力實現曳引式提升的JK-1系列快速曳引機因具有工作效率高、結構緊湊、安裝便捷等突出優點,正在逐步取代卷揚機在建筑工地的地位。
JK-1系列快速曳引機在設計上借鑒了德國等歐美國家的先進理念,采用一字型布置,擁有結構緊湊、安裝便捷、重量輕、體積小、噪音低等突出優點。依靠摩擦力實現曳引式提升,無需依靠繩筒繞繩來實現提拉。
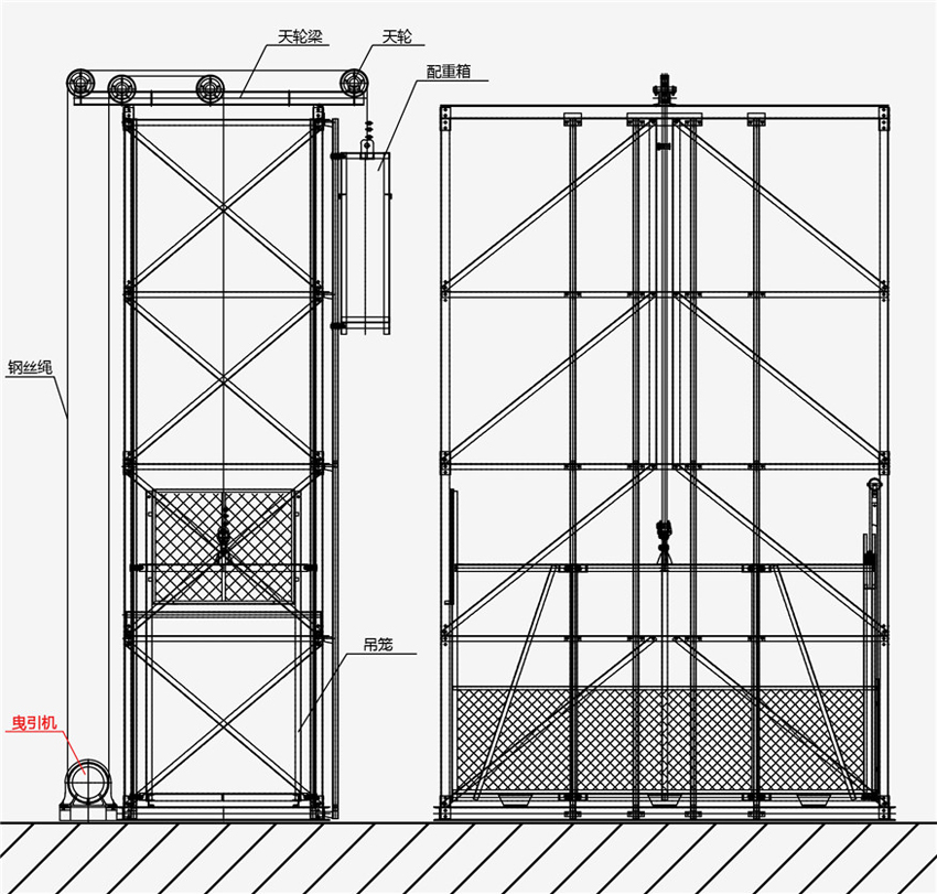
SC100型井架式施工升降機外形結構圖(配JK-1C型快速曳引機)
與傳統的卷揚機相比,擁有以下優點:
提高載重量。利用曳引機實現吊籠升降的升降設備工作原理與客梯類似,在井架一側裝有配重與吊籠自重相互抵消。進而提高了載重量。
消除吊籠沖頂的隱患。曳引機、吊籠、配重三者相互配合,吊籠升配重降,吊籠降配重升。
工作效率大幅提升。JK-1B型曳引機的的提升速度是37m/min,是慢速卷揚機速度的2倍。
安全系數高。JK-1B型曳引機標配2個曳引輪,采用2根獨立的鋼絲繩連接吊籠。此外,當吊籠超載時,曳引輪就會打滑,吊籠無法正常提升,確保升降機工作過程無安全隱患。
電磁失電制動保護。JK-1B型曳引機配備的YEZ132M-4型起重電機,擁有電磁失電制動功能,工作過程中突然斷電時,電機尾部的剎車盤會自動抱死,確保吊籠不墜落。
設備費用低。普通卷揚機用于高層建筑時,考慮容繩量的問題,樓層越高,容繩量越大,繩筒相應增大,卷揚機的價格越高。然而JK-1B型曳引機不存在這方面的問題,從而大大降低了設備成本。
JK-1B型施工升降機曳引機
JK-1C型施工升降機曳引機
JK-1D型施工升降機曳引機
JK-1F型施工升降機曳引機
JK-1系列快速曳引機始于三六機械,已有十八年的生產經驗及技術優勢。從初的JK-1A型逐步升級繁衍出B、C、D、F等四種機型,能夠滿足各類廠家升降機的需求。

工地用卷揚機采用的是帶式剎車方式制動,不僅需要頻繁更換,而且制動效果不理想,容易出現剎車失敗吊籠滑落的問題。JK-1系列快速曳引機配備YEZ132M-4型制動電機,電機尾部的剎車盤在失電的情況下,快速制動。確保升降機的安全工作。
根據十多年的生產及售后經驗,三六機械對JK-1系列曳引機進行多次優化,產品使用壽命得到了大的延長。即使是與鋼絲繩摩擦接觸的曳引輪(摩擦圈)之類的易損件也是經久耐磨。
目前,JK-1系列曳引機在國內的江蘇、浙江、安徽、河南、江西、廣西、云南、福建等省份已經得到廣泛的使用。此外,JK-1B型曳引機遠銷非洲東南亞,得到了國外客戶的一致好評!
上一個 : JK-1B升降機快速曳引機
下一個 : 非標振動盤定制雙輸出減速機


在線客服